Ons gebouw
Ons clubgebouw (met een eigen parkeerterrein, speelplein, 1 speel/kampeervelden en natuurlijk de voor iedere scoutinggroep onmisbare kampvuurkuil) staat sinds 2000 aan de Sliet in Hardinxveld-Giessendam.
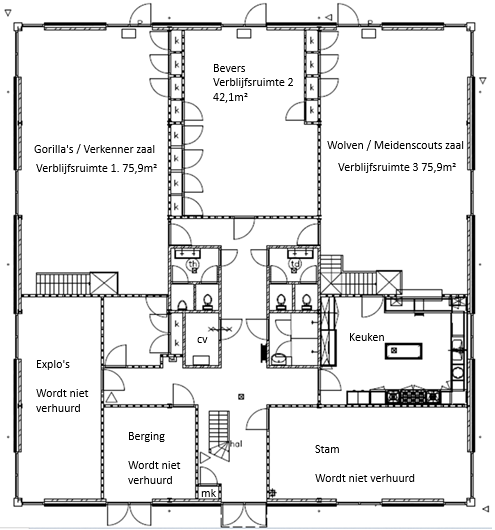
Binnen het gebouw zijn er 3 zalen, 2 kleinere lokalen en 3 zolders. Ook zijn er natuurlijk 2 heren- en 2 damestoiletten, een keuken en 2 douches.
Meer groen op het terrein
We zijn druk bezig om ons terrein nog mooier te maken en dit doen we door op ons terrein meer groen aan te brengen. Hierdoor is het grasveld aan de voorzijde momenteel niet toegankelijk, ook zijn op het achterveld 2 cirkels afgezet waar jonge boompjes geplant zijn.
Let op:
Dit wijkt dus af van de oudere eerdere opgenomen video's / foto's die op deze site staan
Beschikbaarheid
In deze periodes is ons honk al verhuurd.
14 Mei 2026 tot en met 16 Mei 2026 (Definitief)
1 Augustus 2026 tot en met 8 Augustus 2026 (Nog in optie)
Mailen voor een datum die al definitief is heeft geen zin.
Verhuur
Ons ruime clubgebouw is (deels) te huur voor scoutinggroepen of andere verenigingen. Het is een ideaal kampgebouw op een rustige plaats, voor wie wel eens een andere omgeving wil dan bos, met toch genoeg mooie natuur in de nabije omgeving (Hollandse Biesbosh en de polders van de Alblasserwaard).
Let op:
– Verhuur voor feesten en partijen is niet mogelijk/toegestaan in ons gebouw.
– Losse weekenden worden niet verhuurd i.v.m eigen activiteiten in het gebouw, tenzij de groep groter is als 50 personen
Neem vrijblijvend contact met ons op voor de mogelijkheden: verhuur@scoutinga15.nl
Verhuurprijzen
Neem contact met ons op over de mogelijkheden. Zie uitzonderingen hieronder
Huurprijzen 2026
€9,25,- p.p.p.n. Met een minimale huurprijs van €235,-
We verhuren bij voorkeur alleen met Pasen, Pinksteren, Hemelvaart en in de zomervakantie.
Voor alle aanvragen in periodes die niet in bovenstaande periode vallen kunnen in overleg kijken wat er mogelijk is.
Mits dit 3 maanden voor de datum aangevraagd wordt, en de groep uit minimaal 50 personen bestaat kunnen onze vaste huurders uitwijken.
Gebouw indeling

Beschikbaarheid
Hieronder kunt u de beschikbaarheid van ons clubgebouw vinden en kunt u een aanvraag indienen. U zult hierover worden teruggemaild.